Samen in het klein Centrumeiland

    Realisatie

  • 2021 - 2022
  • Opdrachtgever

  • Particulieren
  • Projectarchitect

  • Jan Bochmann
  • Bouwkundige uitwerking

  • i.s.m. Karel van Eijken

Samen in het klein

Op het Centrumeiland wordt een groot aantal individuele zelfbouwwoningen en appartementengebouwen voor bouwgroepen gerealiseerd. De kavels 'Samen in het klein' zijn geschikt voor kleine groepen particulieren die een compact appartementengebouw willen laten bouwen. Ons bureau heeft de ontwerpen voor drie van deze bouwgroepen uitgewerkt. Het gebouw op kavel 09-12 is inmiddels in aanbouw. De ontwerpen voor de kavels 04-02 en 05-11 zullen binnenkort worden uitgevoerd.

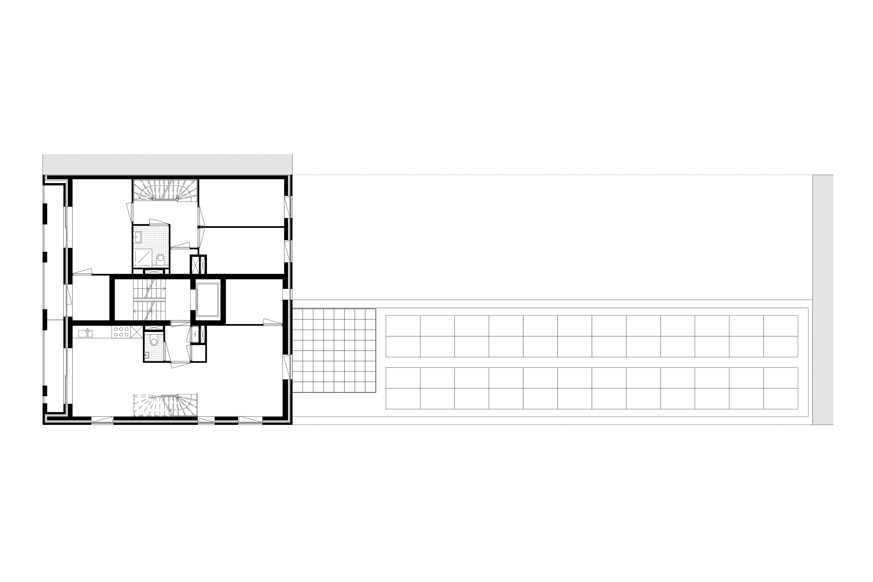
Het gebouw op kavel 09-12 biedt ruimte aan vier appartementen. Elk van deze appartementen beschikt over een woonkeuken achter de op het plein georiënteerde voorgevel. Op het platte dak van het hoge bouwvolume wordt een collectief dakterras voor alle bewoners voorzien en achter het gebouw is een gemeenschappelijke tuin aanwezig. Twee van de vier appartementen beschikken over een eigen garage.

Het gebouw heeft een plastisch vormgegeven voorgevel aan het buurtplein. Door zowel de gevel op de rooilijn als ook de gevel achter de ondiepe loggia’s in dezelfde zandkleurige gevelsteen uit te voeren ontstaat een gelaagde en opvallende gevelcompositie die recht doet aan de bijzondere ligging aan het plein. In de zijgevel zorgen doorlopende betonnen spekbanden voor plasticiteit en voor een goede samenhang met de voorzijde.