Amsterdamseweg Uithoorn

    Haalbaarheidsstudie

  • 2015
  • Opdrachtgever

  • Merin
  • Projectontwikkeling

  • C. Kakes
  • Downloads

  • Project PDF

Amsterdamseweg

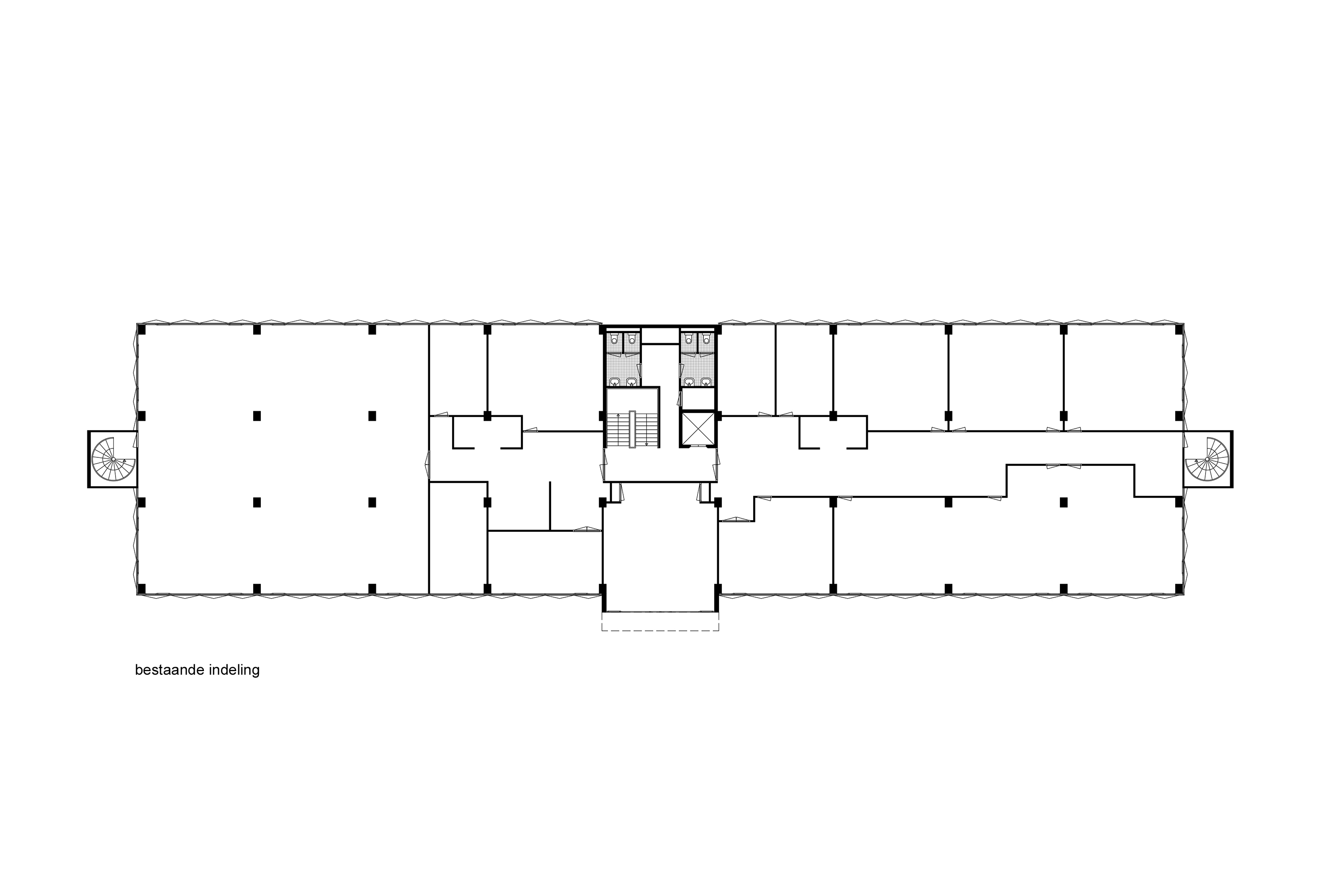
Voor een nagenoeg volledig leegstaand kantoorgebouw uit de jaren 70 in Uithoorn werd een studie naar de mogelijkheden voor opwaardering of herbestemming verricht.

Ondanks de opvallende plastisch vormgegeven borstweringen heeft het gebouw weinig uitstraling. Omdat onder het gebouw overdekte parkeerplaatsen zijn gerealiseerd is er een onbevredigende relatie tussen het gebouw en zijn directe omgeving. Daarnaast is de entreehal van het complex nauwelijks zichtbaar en slecht vormgegeven.

Bij een toekomstige transformatie zouden in de plint van het gebouw nieuwe showrooms kunnen worden geplaatst. Deze kunnen in combinatie met de grote opslag- en productiehal daarachter of in combinatie met kantoorruimtes daarboven worden verhuurd. Door de bestaande borstweringen op de eerste verdieping te vervangen door een nieuwe luifel en reclamestrook krijgen de showrooms een moderne en uitnodigende uitstraling. Ook de vernieuwde entreehal heeft een vriendelijk karakter dankzij de dubbele hoogte en een goede verlichting in de avonduren.

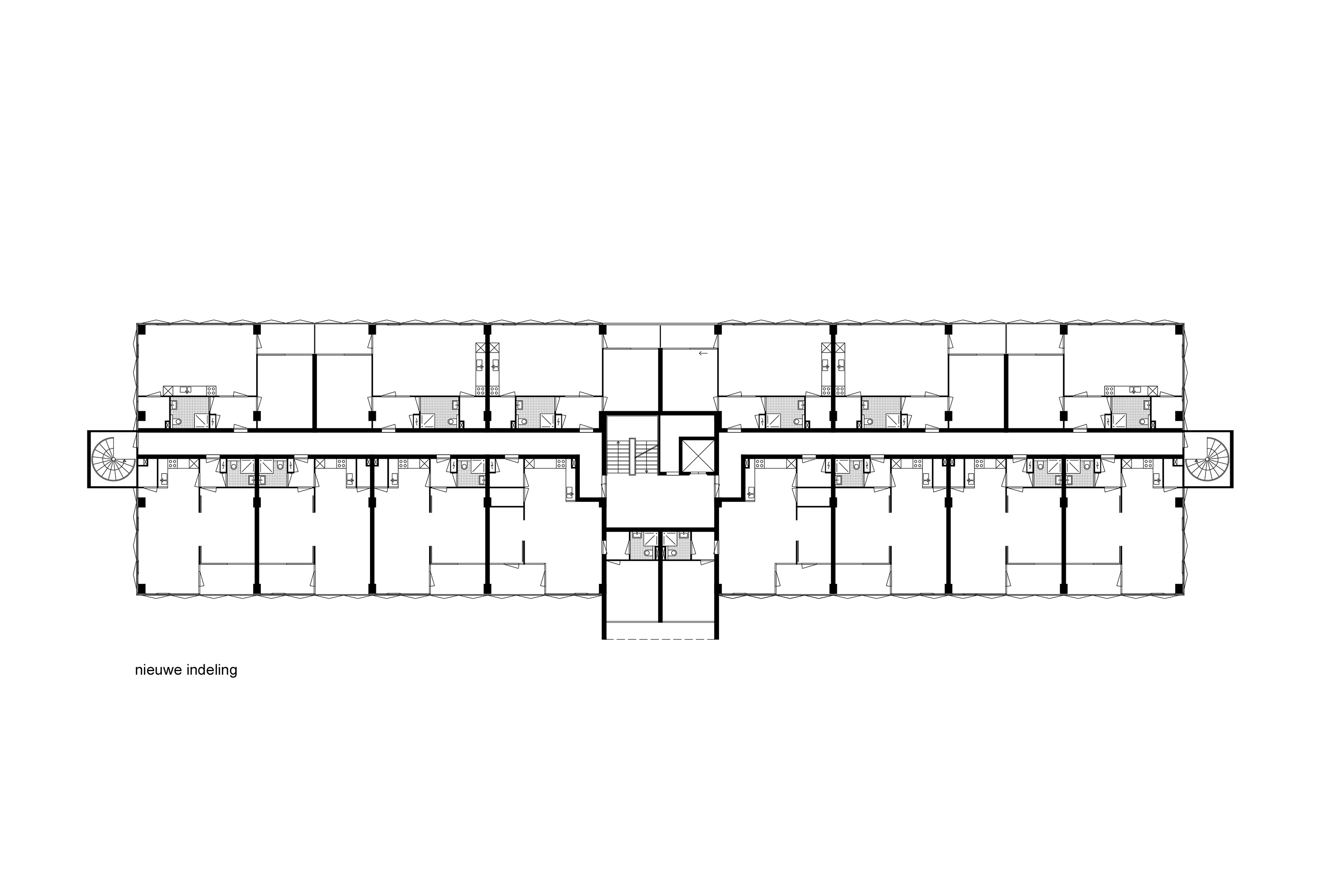
Op de verdiepingen kunnen kleine separate kantooreenheden of grote samenhangende kantoorruimtes worden verhuurd. Ook is er de mogelijkheid om appartementen te realiseren. Op de tweede en derde verdieping zouden bijvoorbeeld 32 studio’s met een woonoppervlakte tussen de 52 en 67 m² kunnen worden geplaatst. De loggia’s van deze studio’s komen achter de karakteristieke gezuurde prefab betonelementen uit de jaren 70 te liggen.