Amsterdamseweg Uithoorn

    Feasibility study

  • 2015
  • Client

  • Merin
  • Project development

  • C. Kakes
  • Downloads

  • Project PDF

Amsterdamseweg

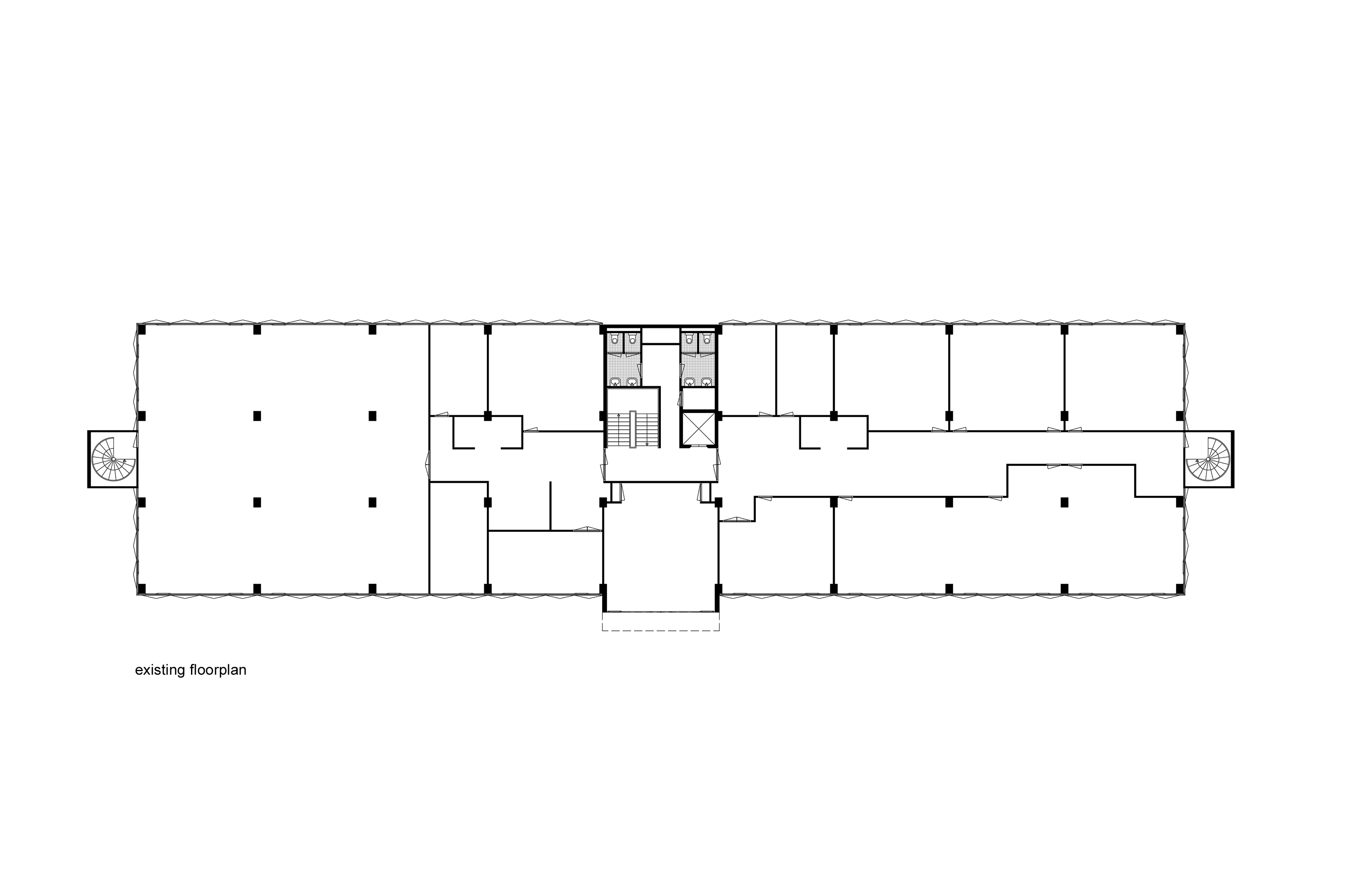
Our office has carried out a feasibility study into the upgrade or transformation of an almost entirely vacant office building in Uithoorn.

Despite the intriguing concrete facade elements from the 1970’s the building has little character. There is an unsatisfactory relationship between the building and its surrounding. This is the result of the ground floor of the building almost entirely being used as a covered car park. Furthermore, the main entrance is almost invisible and badly maintained.

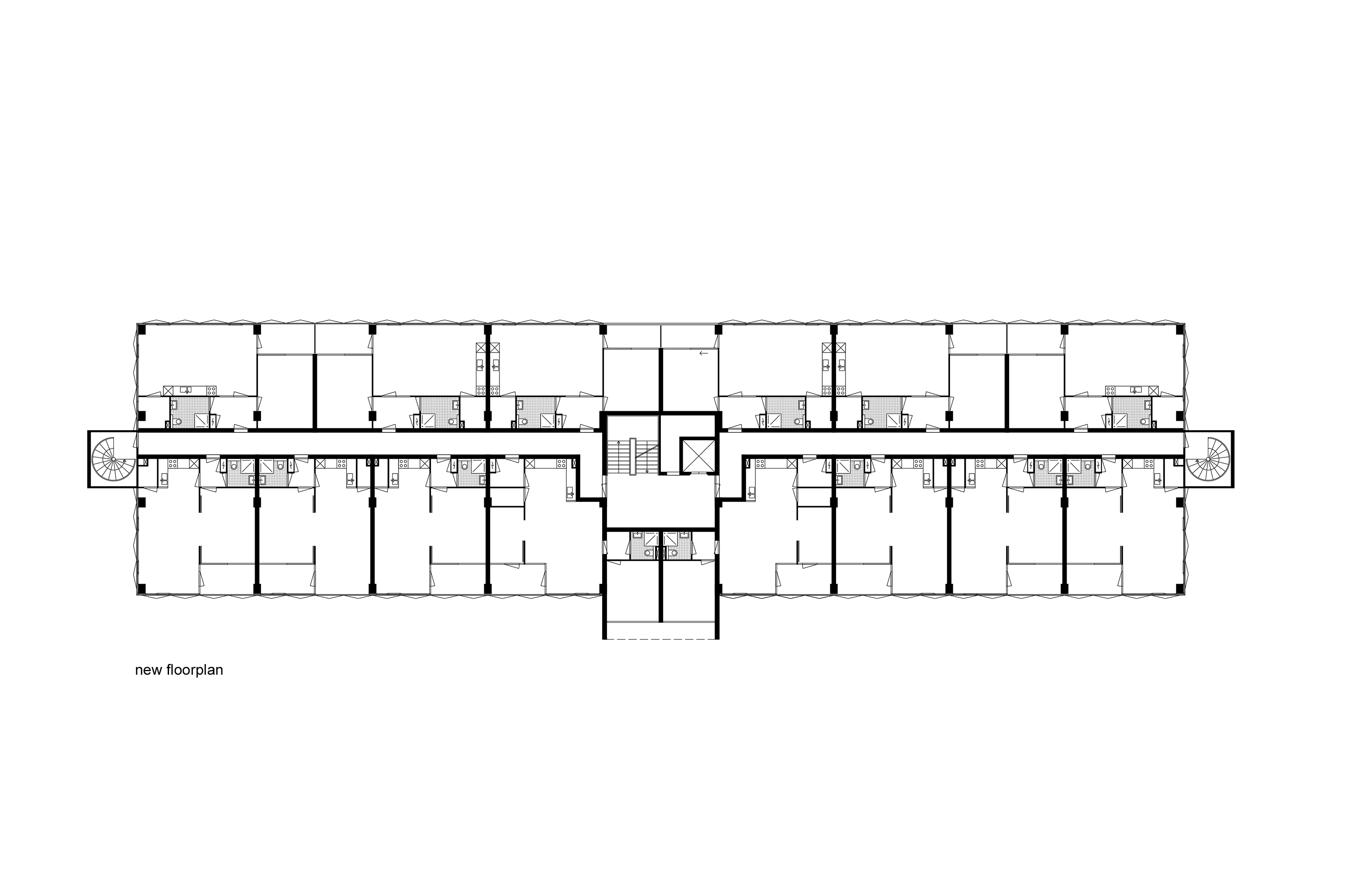
As part of a transformation the covered car parking area could be turned into new showrooms that can be combined with the large production hall behind the building or with the office spaces on the upper floors. By removing the original parapets on the first floor a new zone for advertisements and canopies can be created. The former dark and small entrance hall can be transformed into an inviting and modern entrance space with double height and proper lighting at night.

On the upper floors small or large office units can be rented out. There is also the possibility to create apartments here. On the second and third floor a total of 32 studios with a surface area of between 52 and 67 m² can be realized. The loggias of these studios are placed behind the characteristic prefabricated facade elements.