Smarter Starter The Netherlands

Smarter Starter

Smarter Starter is a new and innovative housing concept. It offers individual houses for a budget starting at € 98.000 (VAT included, property not included) with the possibility to extend this small house in the future. The concept focuses on affordable, high-quality and future-proof structures.

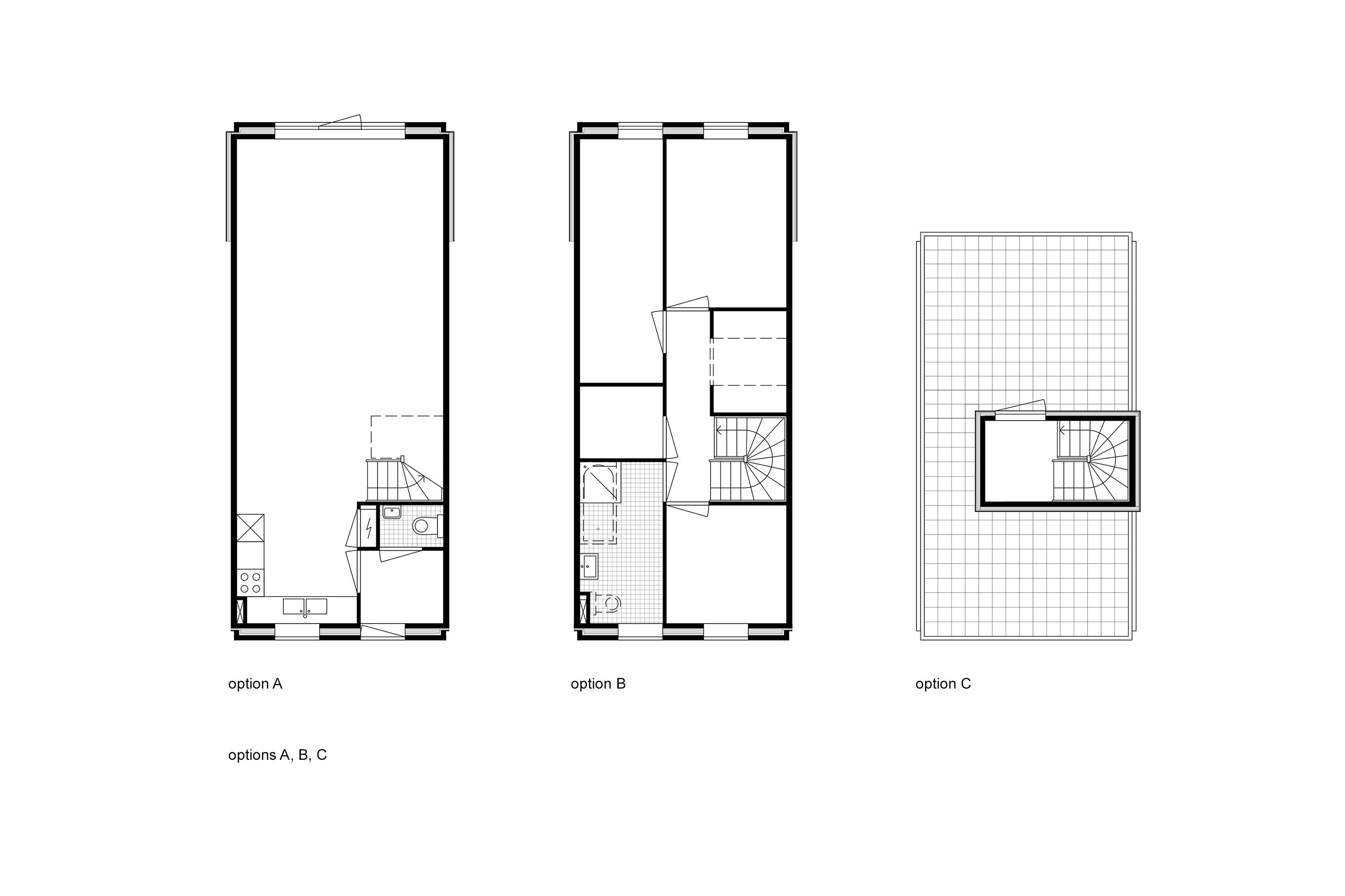
The basic house with two sleeping rooms has a net floor area of 74 m². The house is provided with a future opening in the flat concrete roof and with the foundation piles at the rear of the building. Thanks to those elements the basic house can easily be extended to a full-sized family space of 132 m² and a maximum of 6 sleeping rooms. A second toilet and a bathtub can simply be added to the spacious bathroom on the first floor.

In collaboration with the contractor a variety of six extensions for a fixed price is offered to future clients. Depending on the local building rules those extensions may possibly be exempted from building permissions. Also, there is the option to combine various extension designs. Furthermore, the clients can choose from various facade finishings in brick or wood and from and a diversity of bathroom elements and tiles.

Apart from the step-by-step growing process there is also the possibility to realize a variety of extensions from the beginning so that a playful diversity of individual houses defines the neighborhood straight away.